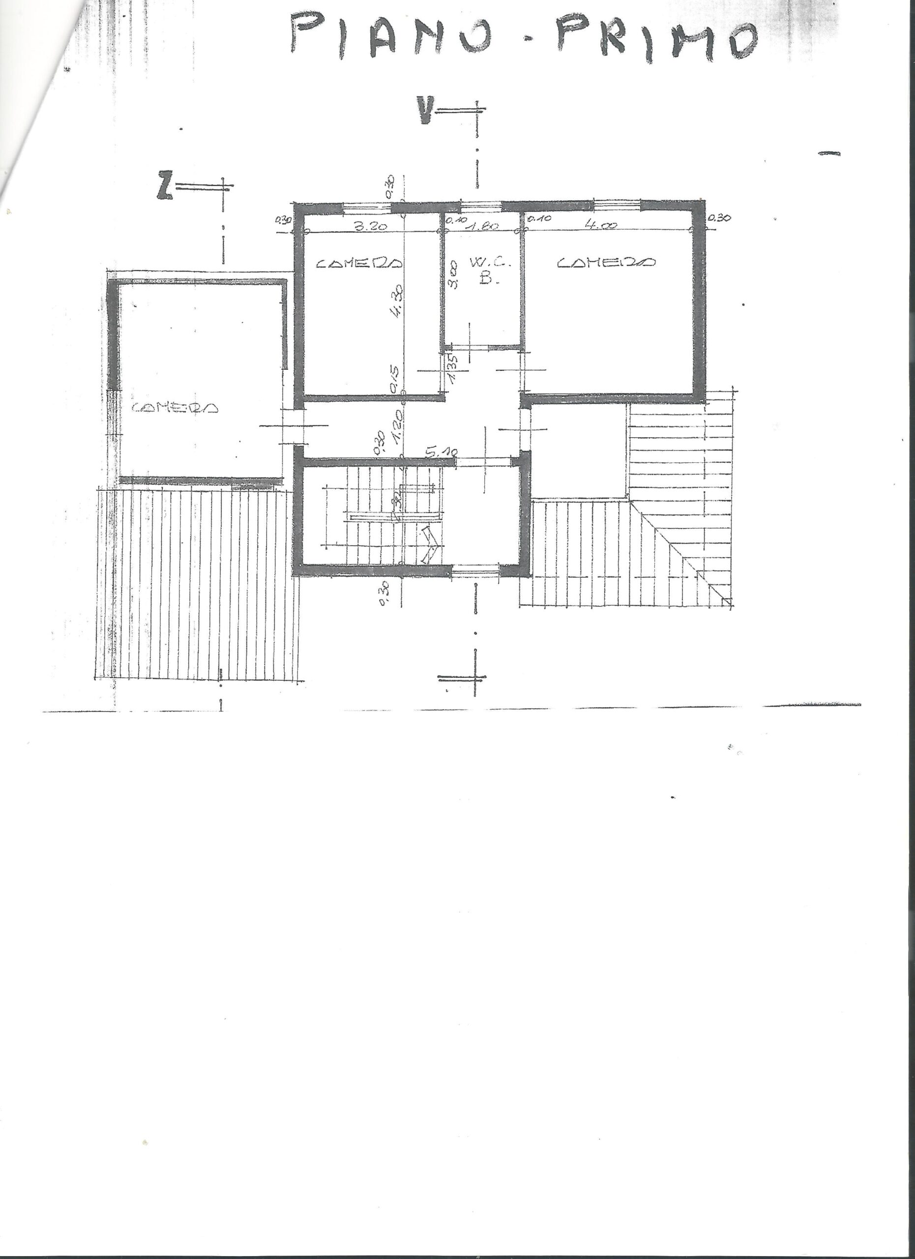
Inserita tra le spettacolari colline sanminiatesi, in posizione collinare con bellisima vista su San Miniato Alto, contornata da 10.000 mq di terreno, dotato di pozzo e irrigazione, con piante ad alto fusto che le donano particolare privacy, e dotata di piscina esterna con solarium, spazio barbeque e relax, casa indipendente, libera su quattro lati, composta da ampi loggiati che ne permettono la vivibilità per molti mesi dell’anno. L’immobile si compone al suo interno di ingresso su grande e luminoso soggiorno, generosa cucina pranzo, bagno e stanza multiuso. Al primo piano, si trovano tre grandi camere matrimoniali, con ulteriore bagno e terrazza vivibile con bellissimo affaccio.
La posizione della casa, la comoda strada asfaltata, la vicinanza di un ingresso in Fi-Pi-Li, e la poca distanza dai centri abitati, rendono questa proprietà particolarmente adatta a chi cerca un’abitazione da vivere fin da subito in totale tranquillità e privacy.
Classe Energetica in attesa di certificazione
Rich. Euro 790.000
