Empoli, in una delle zone più strategiche e di maggior passaggio, con affacci diretti su Piazza Don Minzoni e Via Roma, proponiamo in vendita fondo commerciale di assoluto prestigio, unico nel suo genere per posizione, visibilità, e valore storico.
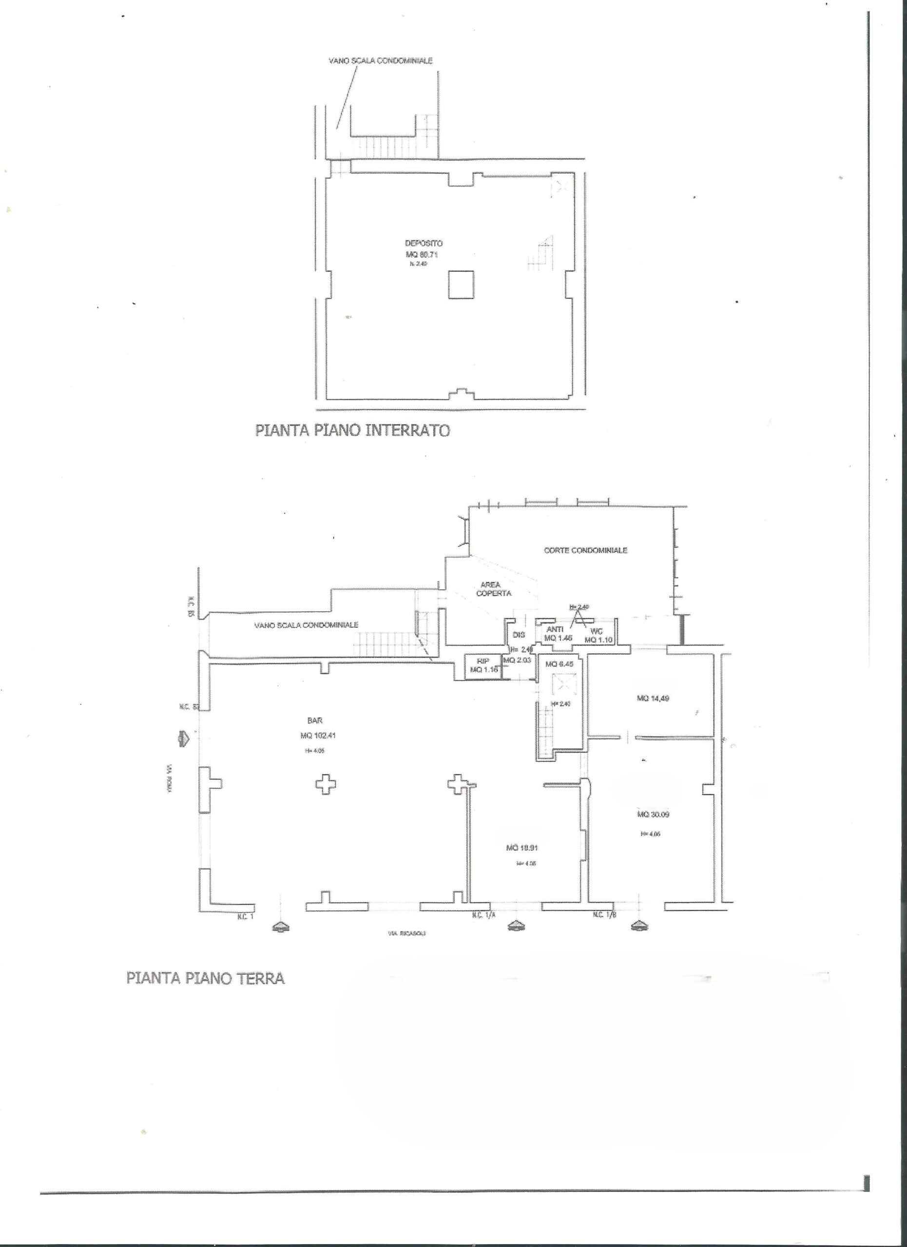
L’immobile, ex sede dello storico Bar Viti si sviluppa per una superficie di 235 mq. commerciali, di cui mq. 190 al piano strada e mq. 90 di magazzino sottostante (asciuttissimo!!!), e gode di una visibilità eccezionale grazie alle sei aperture/vetrine (due su Via Roma e quattro sulla Piazza), che lo rendono estremamente luminoso e ideale per attività aperte al pubblico.
Inserito in un elegante edificio dei primi del ‘900, il fondo conserva soffitti altissimi con suggestive volte a crociera, che conferiscono grande charme e prestigio agli ambienti. La facciata è stata recentemente completamente ristrutturarta, risultando come nuova.
Accesso diretto dal fondo alla corte condominiale. Soluzione ideale per bar e pasticcerie, ristorazione leggera, ma ancxhe showroom o attività di rappresentanza, istituti bancari e finanziari.
Classe Energetica in attesa di certificazione
Rich. Euro 470.000
